Sold

19 Apanie Street, Middle Park

SOLD

4 3 2

SOLD BY LISA TERARE AND TEAM

LOCATION - Elevated in a commanding position with magnificent views and breezes, flood free and surrounded by quality homes in a family friendly neighbourhood. Conveniently located with easy access to public transport, Middle Park Shopping Centre, schools and all amenities. This property guarantees a comfortable long term place to call home in a quiet street.

THE HOME - Comprising of 4 good sized bedrooms, master with ensuite and private balcony and walk-in wardrobe. 3 bathrooms and set high to ensure panoramic views and summer breezes, this is the perfect place for a family with teenagers as the bus stops close by. With commanding street presence this architecturally designed brick home is low maintenance and carefully designed to suit the busy lifestyle.

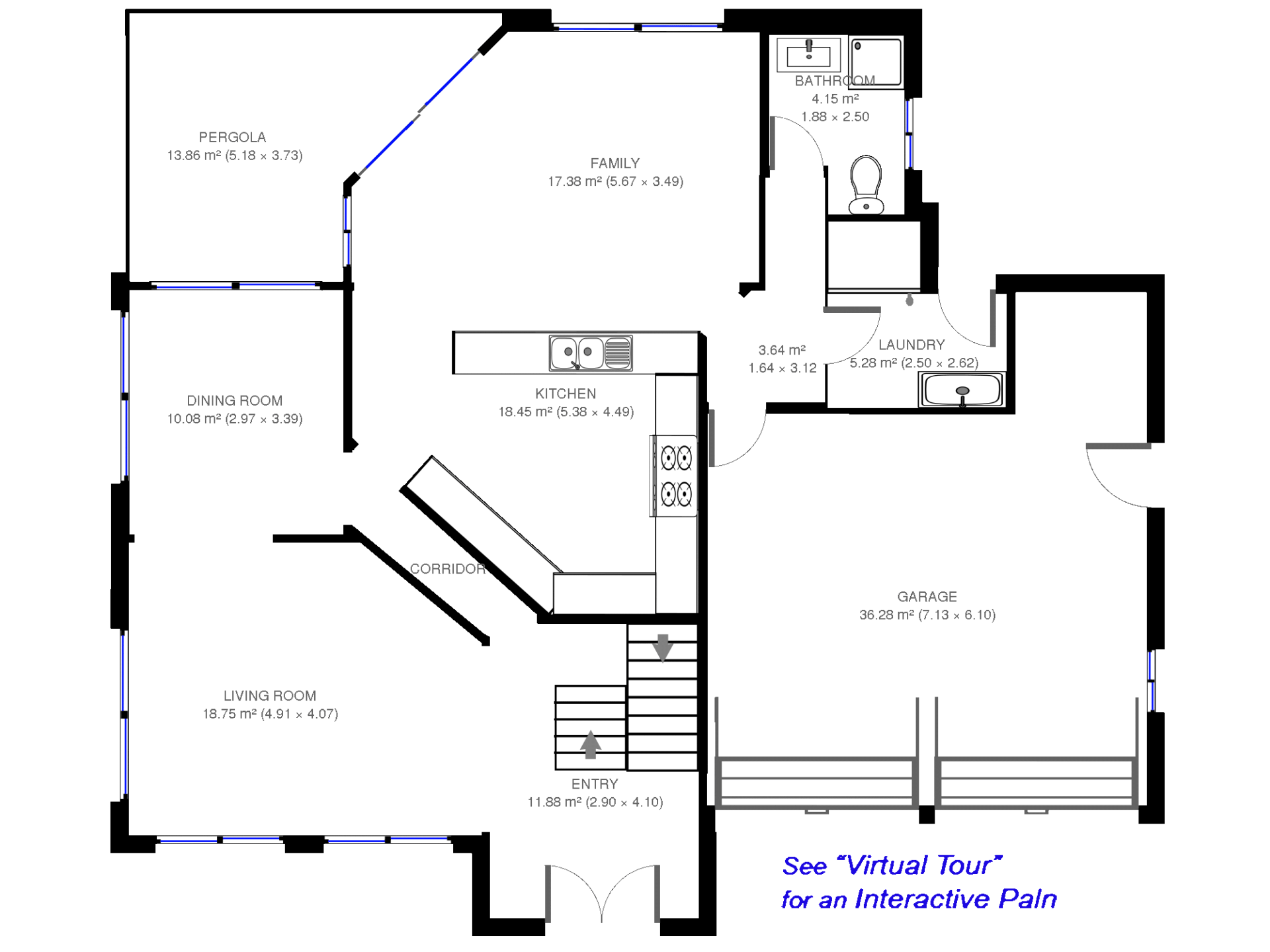
GROUND LEVEL - The entry foyer flows through to formal air conditioned living and dining rooms located for good separation from the rest of the home. Continue on past the stunning chef's kitchen, a second living area creates a perfect entertainment hub for the family to come together on those cold winter nights around the combustion wood heater.

THE KITCHEN - A large fully refurbished central kitchen with deluxe breakfast bar, granite bench tops, 6 burner 900mm gas cook top with electric oven, large walk in panty, 32 bottle wine fridge stainless steel dishwasher/insinkerator in double sink, LED under cupboard lighting, plumbed for multi-function fridge, as well as loads of storage.

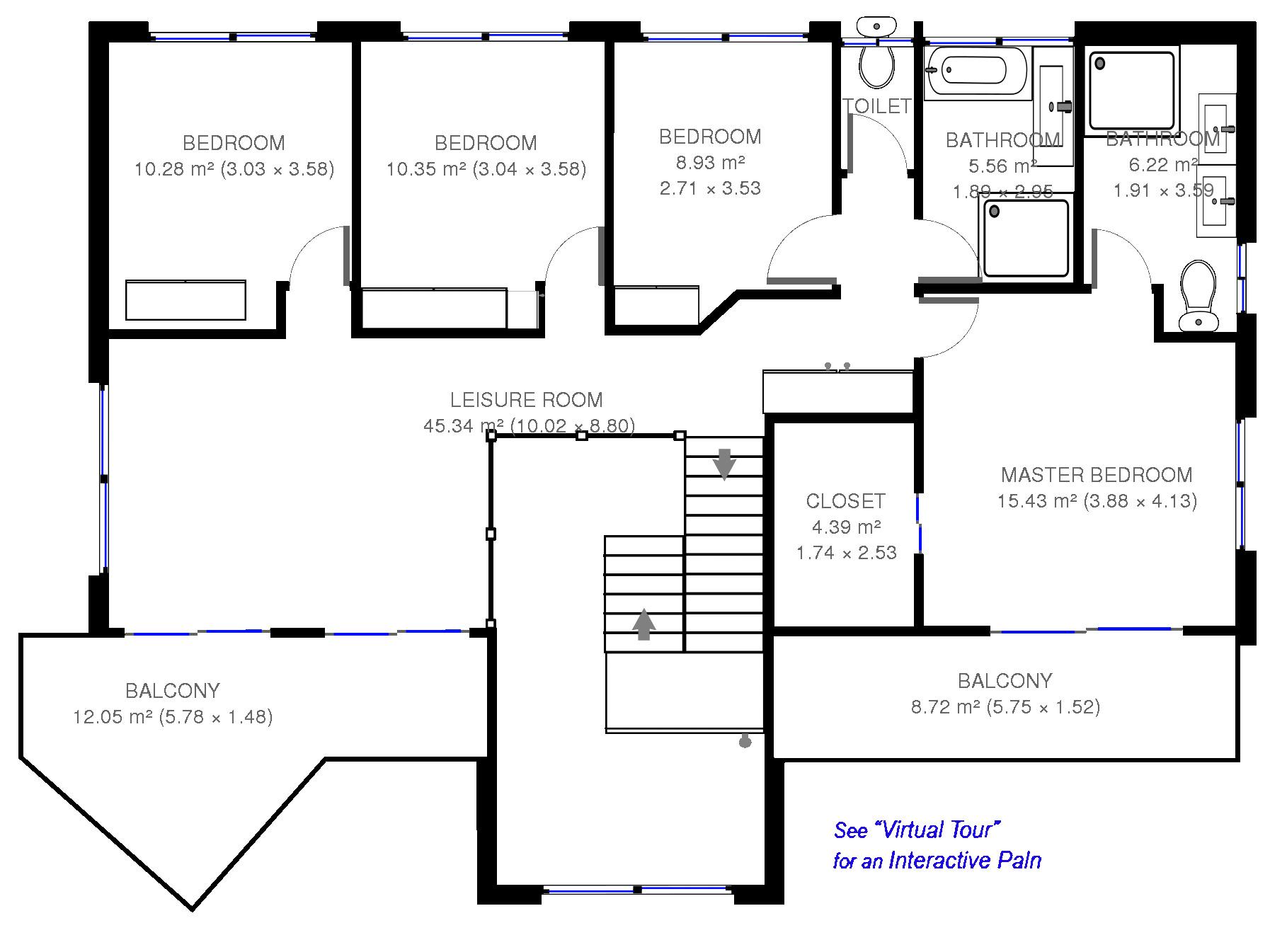
LEVEL 1- A beautiful staircase leads to spacious upstairs living room with private balcony to take in cool breezes and beautiful views and evening sunsets. Three built in bedrooms, two with air conditioning share a modern bathroom with laundry shute. The large master bedroom has a walk in robe, updated ensuite and private balcony with stunning views to the horizon.

Features:
- 4 Bedrooms with Built-ins
- Master with en-suite, air, walk-in and private balcony
- 3 Bathrooms
- Vacuumaid
- Laundry shute from upstairs bathroom
- Fully renovated luxury kitchen
- Air Conditioning
- Wood fired combustion heater
- Total Roof renovation with Globalcote protection
- Two whirly birds
- Garden shed
- Open plan living with separated areas
- Timber decks rebuilt
- Great storage throughout
- Low maintenance 635m2 block
- Double lock up automatic garage


AMENTIES - Close to local cafes, Middle Park Shopping Centre and public transport and McLeod Country Golf Course. Just minutes away from Mt Ommaney Shopping Centre, primary and high Schools, child care centres, bikeways and parklands.
Midd

Property Code: 2409
4 3 2

Details

Address 19 Apanie Street, Middle Park
Price SOLD
Property Type Residential
Property ID 185
Category House

Tools

Share This Property