Sold

26 Sabot Street, Jamboree Heights

SOLD

3 2 1

Sold By Lisa Terare & Team

This rendered highset home is a stylish mix of space, casual relaxed living and superb location - a great opportunity to secure low maintenance lifestyle that many will envy.

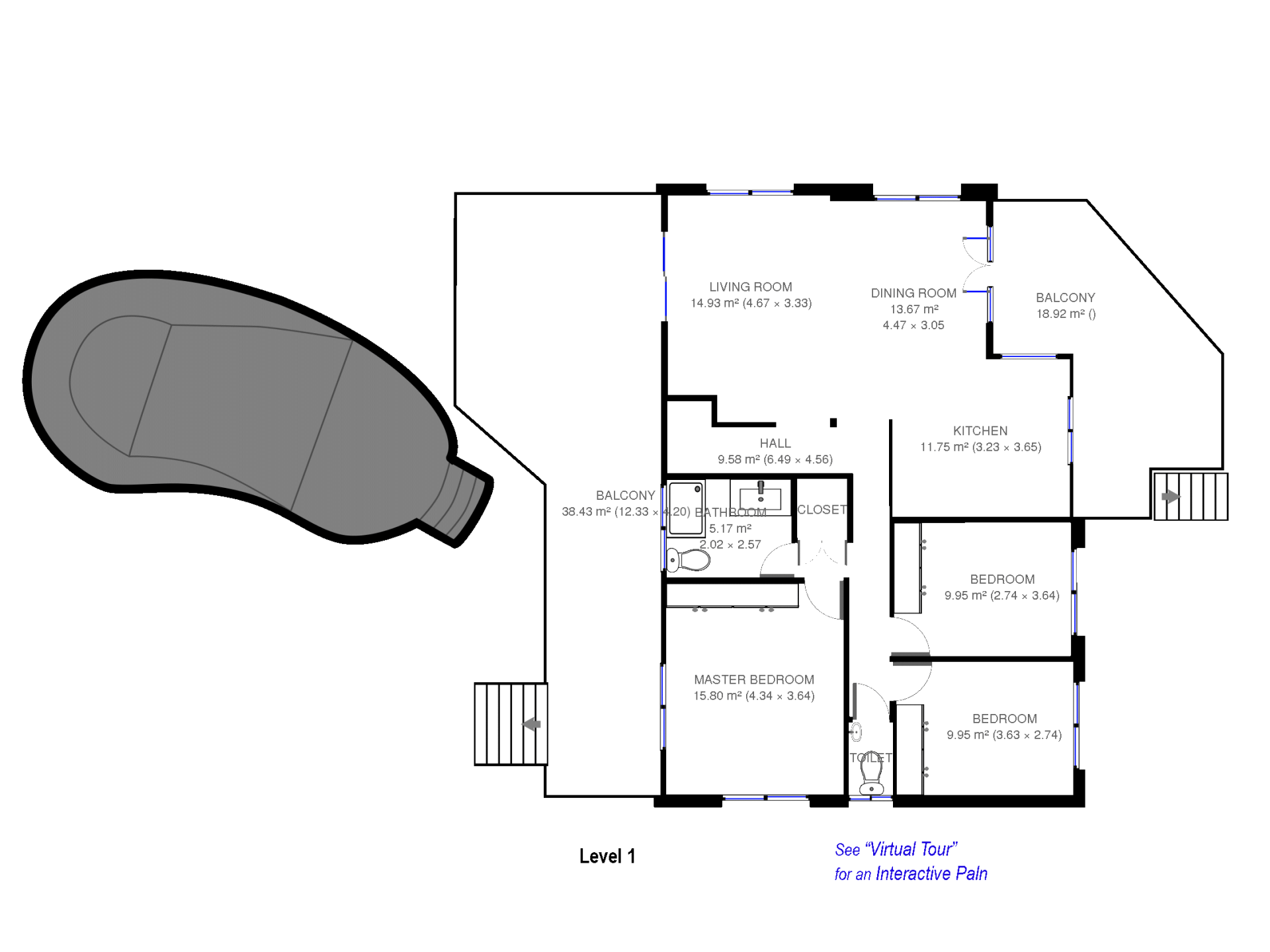
An open floor plan creates a living space that merges with a large deck front and back, to encourage a seamless flow between indoors and out and overlooks the sparkling pool and surrounding deck areas and grassy back yard.

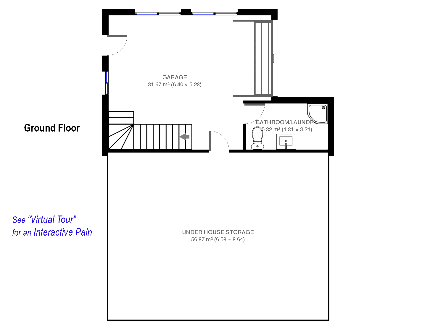
OTHER FEATURES:
- 3 bedrooms upstairs with built-in robes
- Master with air-conditioning and access to back deck
- Central kitchen with timber cabinetry, plenty of storage and gas cooking
- Timber floorboards throughout
- Large front covered deck
- Sparkling in-ground pool
- Elevated position ensures cool afternoon breezes
- Solar panels
- Beautifully landscaped 574m2 landscaped block
- Internal access to single lockup garage

Enjoy the convenience of being a stone's throw from Private and Public Schools, public transport, several major shopping centres, golf courses and the added proximity to a major highway without the noise!

Contact marketing agent Lisa Terare for an inspection.

Property Code: 2474
3 2 1

Details

Address 26 Sabot Street, Jamboree Heights
Price SOLD
Property Type Residential
Property ID 197
Category House

Tools

Share This Property