Sold

Unit 14, 31 Haig St, Brassall

SOLD

2 1 1 141 m2

Low maintenance, Big court yard, Quiet and peaceful

This well-appointed 2-bedroom townhouse presents in the lovely gated community at Mihi Grove. This complex holds a sense of peace and serenity as soon as you hit the entrance. Complemented with an Inground swimming pool and BBQ area you can take advantage of the low maintenance living, all while still being able to entertain when the time calls for it.

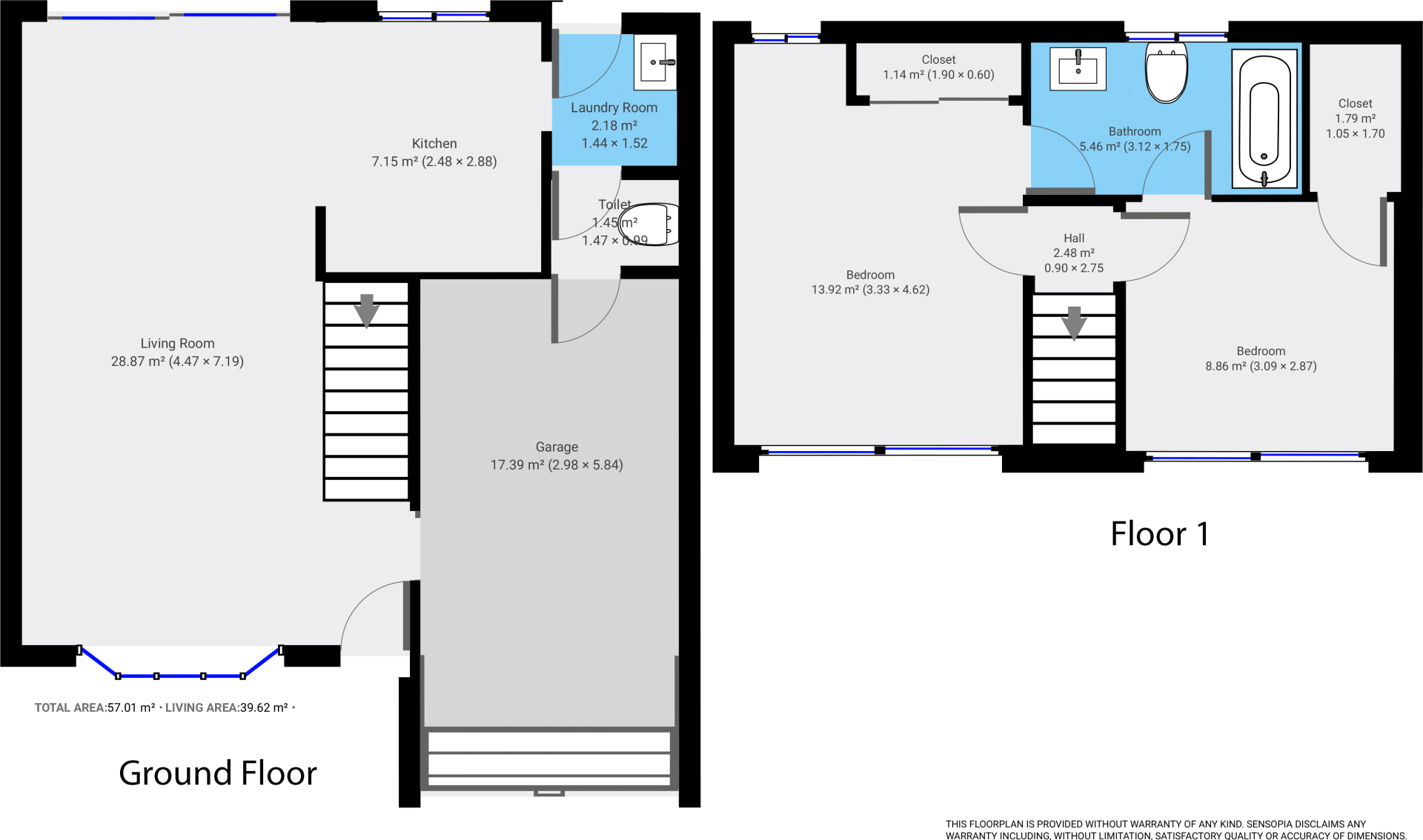
As you enter ground level of this modern two storey home you’re welcomed with neutral tiles and an open plan lounge/dining which flows straight outside to your very own grassy space perfect for relaxing with an option for gardening. The kitchen also overlooks the outdoor area and provides access to the laundry, second toilet and the single lock up garage.

Upstairs is carpeted for all year-round comfort. There are two bedrooms, one with a built-in robe, the other boasts walk in robe. Between the two rooms is a two-way bathroom for easy access.

There are currently wonderful tenants in place paying $250 per week. They have confirmed they are happy to work with any prospective purchasers – in other words if you’re a savvy investor looking to grow your portfolio then the tenants will stay in place. However, if you are looking to occupy and move in, that’s something they’ll work with too. There is no right or wrong here.

Features at a glance:

- 2 Bedrooms with robes (one walk-in and one built in)
- Two-way bathroom upstairs
- Modern kitchen and bathroom
- Security screens throughout
- Down lights
- Single lock up garage with internal access
- 2 toilets
- Private spacious courtyard
- In-ground swimming pool and BBQ area within the complex
- Currently tenanted at $250 per week

In terms of Location:


- Walking distance to bus, Ipswich SHS, Brassall SS & Brassall Shopping Centre
- A short 4.8km to Riverlink Shopping Centre
- Only 4km to Ipswich railway for city commute
- Quick and easy access to the Warrego HWY
- Approx 40km to Brisbane CBD
- Childcare
- Sporting facilities and parks
- Restaurants, cafes and More

Welcome to a suburb that has so much to offer for so many – families, singles, couples, investors, retirement, whatever your situation, it caters to all!

Please contact Sherelle on 0434268505 for further info or to arrange a private inspection.

Property Code: 253

Features

in-Ground Pool
2 1 1 141 m2

Details

Address Unit 14, 31 Haig St, Brassall
Price SOLD
Property Type Residential
Property ID 253
Category Townhouse
Land Area 141 m2

Tools

Share This Property