Sold

12 Arosa St, Jamboree Heights

SOLD

3 2 2 600 m2

SOLD by Lisa Terare

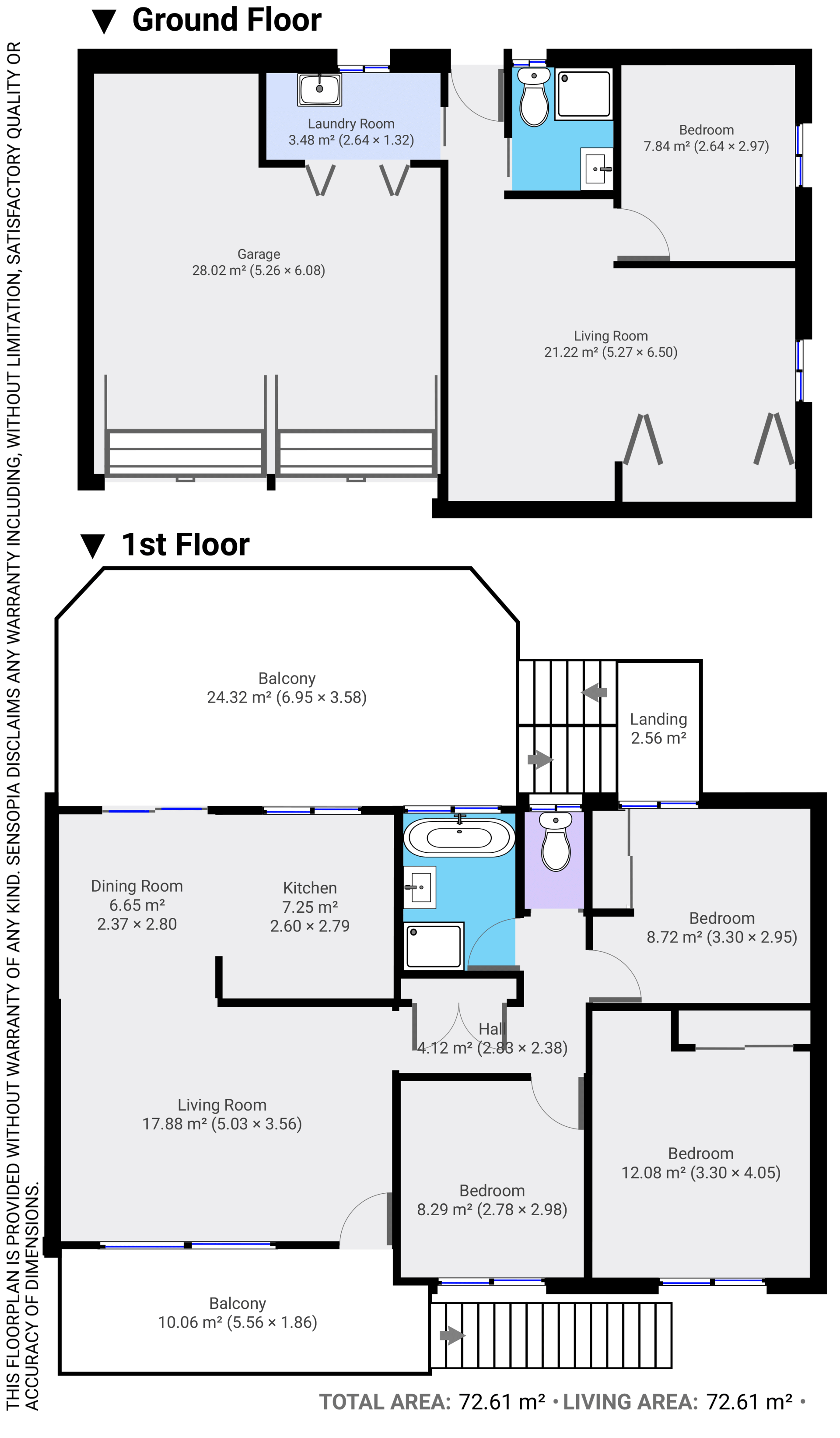
This convenient location is one of Brisbane's best kept secrets, secure this property now and enjoy being close to everything! This solid high set home is located on a large landscaped block, and situated close to public transport, only minutes walk from Mount Ommaney Shopping Centre, Public Schools and all other amenities.

Spread over two levels this home is the perfect entertainer and offers a range of options for the lucky purchaser.

Upstairs has an air conditioned living and dining area with timber floors, the functional kitchen has stainless steel appliances and has easy access to the huge back timber covered deck.

There are three bedrooms with built in wardrobes, renovated family bathroom and separate toilet.

Downstairs includes a spacious multi-purpose area that is perfect for home business, teenage retreat or has endless options for extra family members and is complete with full size bathroom and laundry. Also flowing off this area is a private paved undercover entertaining area.

12 Arosa Street Jamboree Heights features

- 3 bedrooms, 2 with built-ins and ceiling fans
- 2 bathrooms
- Timber floors
- Separate living areas
- Downstairs has an office, rumpus and full bathroom
- Spacious undercover back deck on the upper level
- Downstairs covered entertainment area
- Double lock up garage as well as room for off street parking
- Side access to backyard
- Flat landscaped, fenced back yard
- Garden shed

Locations like this are extremely rare, being within walking distance to Mount Ommaney Shopping Centre, public bus stop to Brisbane CBD. Less than a minutes drive and you are on the major routes North, South, East or West.

This property is being sold without a price and therefore a price guide can’t be provided until after the first inspection. The website may have filtered the property into a price bracket for website functionality purposes. As per legislation no price and no price range will be given to potential buyers.

Property Code: 283

Features

Deck Outdoor entertainment area Fenced Outside Spa
3 2 2 600 m2

Details

Address 12 Arosa St, Jamboree Heights
Price SOLD
Property Type Residential
Property ID 283
Category House
Land Area 600 m2

Tools

Share This Property