Sold

332 Sumners Road, Riverhills

SOLD

4 2 2 549 m2

Spacious Family Home

Catering for the growing family this functional double storey home offers privacy, security and enjoys all the conveniences of today.

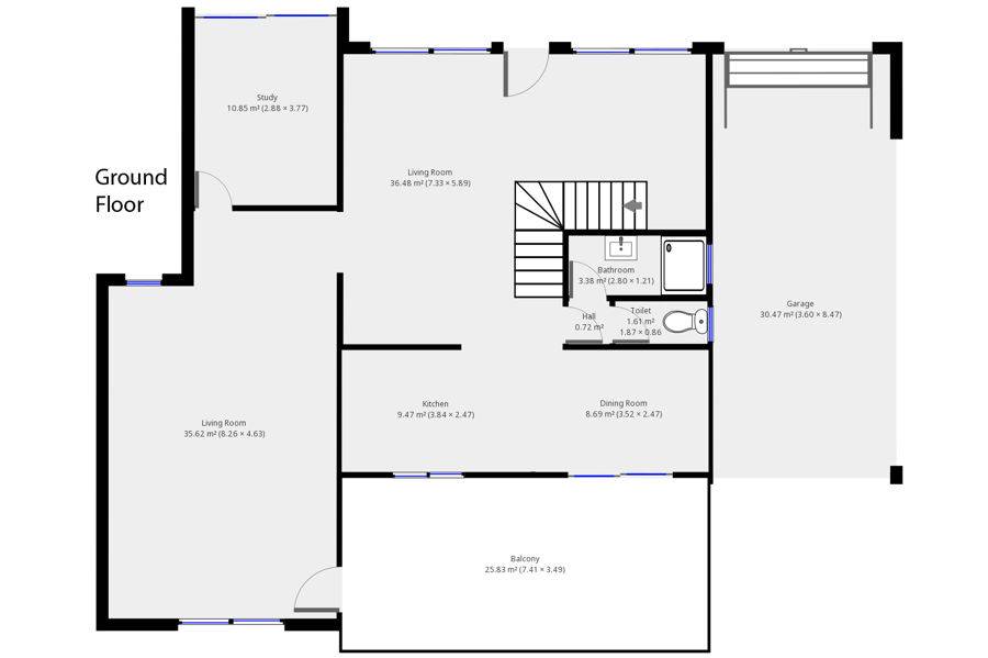
Downstairs
The easy flowing floor plan encompasses indoor and outdoor living areas that fit together to ideally utilize every inch of space. With a large kitchen and dining room which flows seamlessly to the outdoor covered area, choose to entertain or simply enjoy the outdoors amongst the lovely landscaped yard.
A forth bedroom or study is conveniently located on this level and huge rumpus room is a perfect place for the kids to amuse themselves.

Upstairs
Accommodates 3 well-appointed bedrooms all with air-conditioning and Master with large walk in robe. The bedrooms are serviced by the modern bathroom.

Features:
- Open plan living and family rooms
- Additional large family/rumpus room
- Central kitchen with breakfast bar and loads of storage
- Outdoor covered entertaining area
- Fourth bedroom or office with ceiling fan
- Modern bathroom with separate toilet
- Fully fenced, low maintenance yard
- Water Tank
- Double garage with remote access through to the back yard
- Large master bedroom with walk in robe and air conditioning
- Two additional bedrooms with built in robes and air conditioning
- Large modern bathroom with full sized bathtub
-Timber floors

The bus is a short walk as is the shops and Middle Park State School, this family home is ideally suited to couples or families wanting plenty of space and a low maintenance yard set in an ideal location.

Features

Outdoor entertainment area Fenced Study
4 2 2 549 m2

Details

Address 332 Sumners Road, Riverhills
Price SOLD
Property Type Residential
Property ID 79
Category House
Land Area 549 m2

Tools

Share This Property