Sold

29 Blackstone Street, Indooroopilly

SOLD

3 2 2

SOLD BY LISA TERARE

This spacious two level home, positioned in a quiet leafy street, will afford you the many benefits that come with living in this great suburb. Perfect for the young family wanting to be in the right location, for the right schools and close to all amenities this is the perfect opportunity.

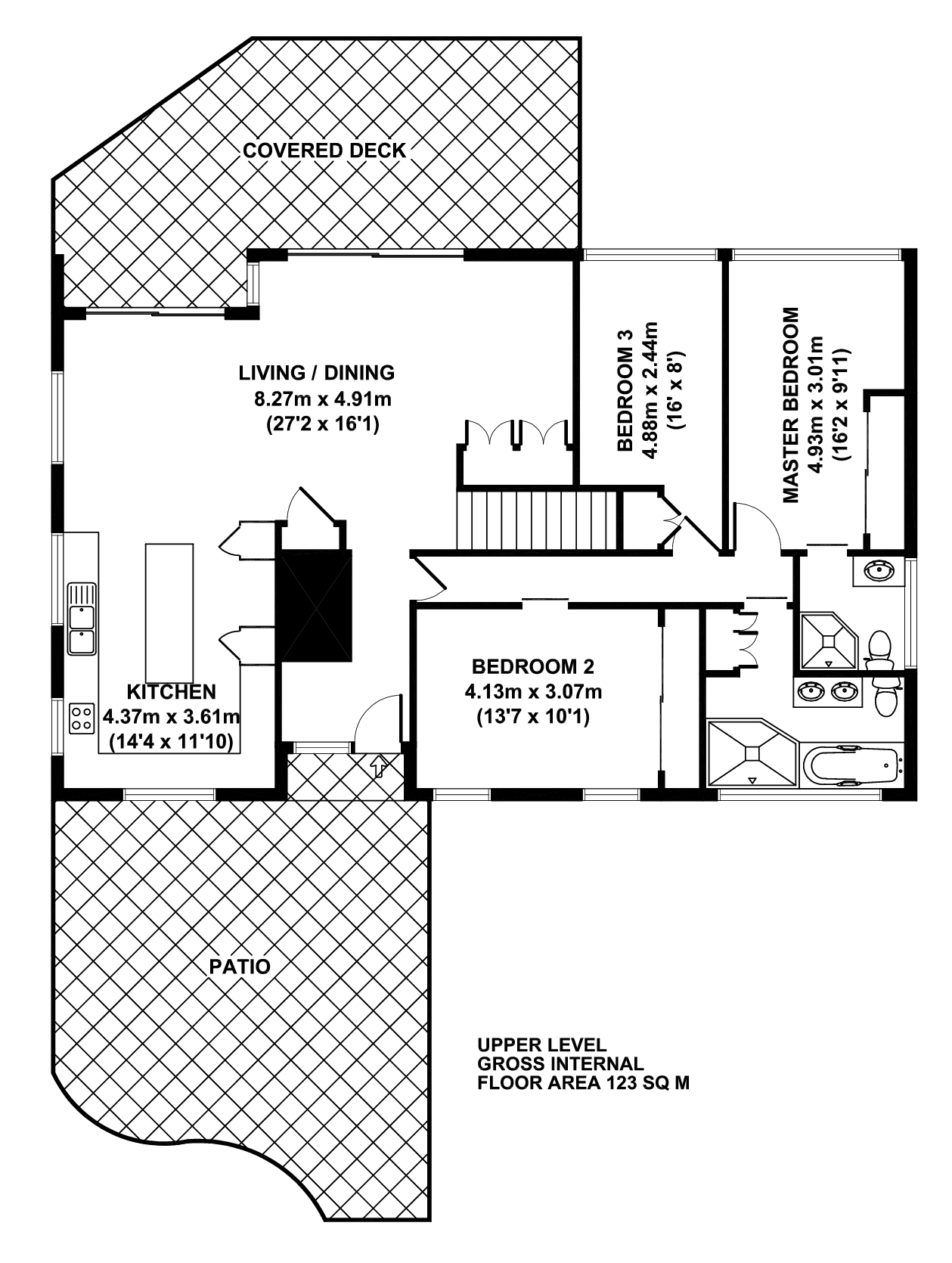
The upper level features stunning timber floors a huge Chefs kitchen with island bench, stainless steel appliances and stone bench tops.
There are three good sized bedrooms all with carpet, air conditioners and built-ins.
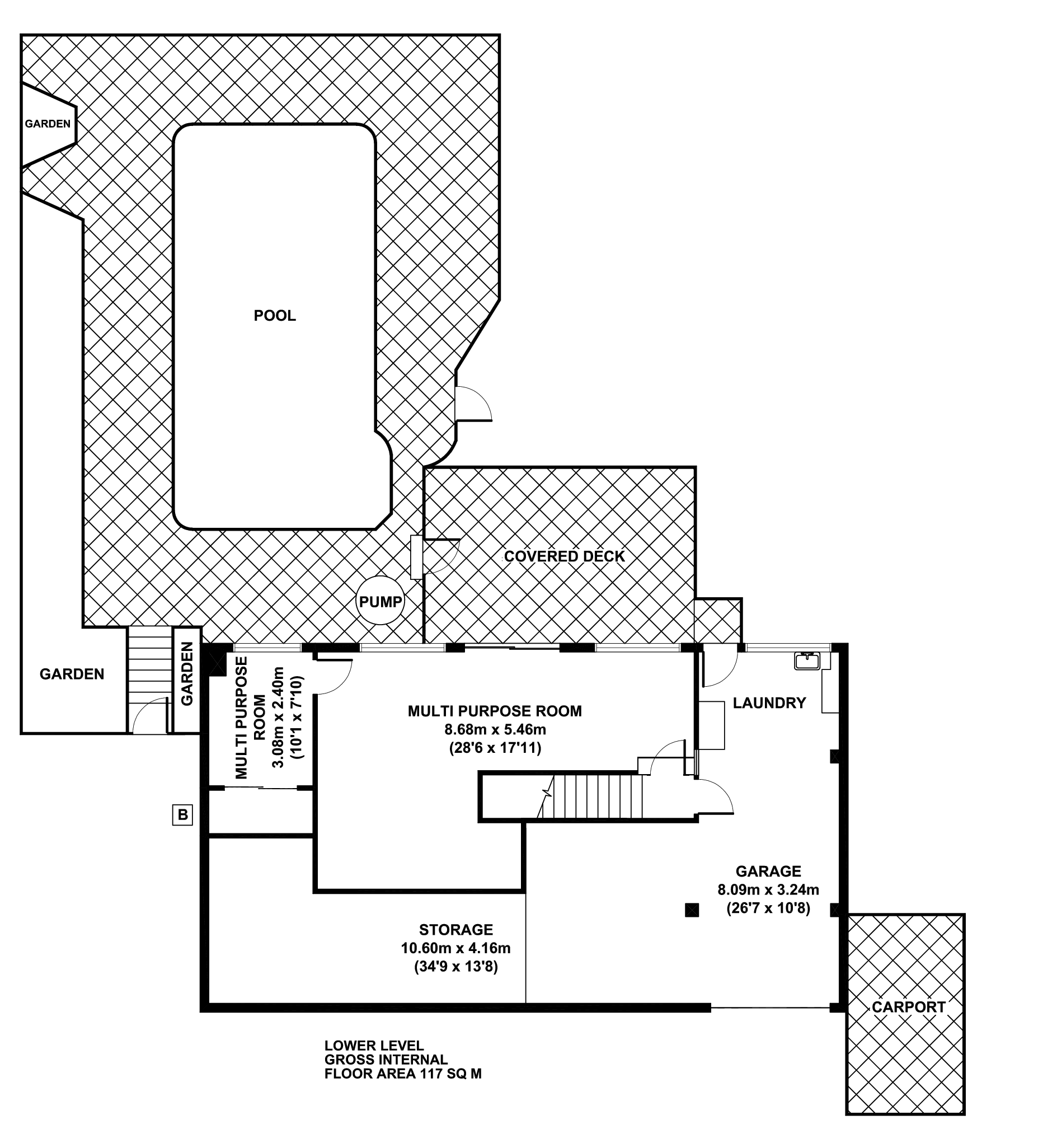
Entertaining is a joy with a choice of two, large outdoor undercover decks that face North-east overlooking the sparkling in ground swimming pool.
With great separation for everyone the house is deceivingly large. The lower level features huge rumpus, laundry, plenty of storage and another spare room
Positioned on 675m2 block and in a great location, the house is vacant and ready for the new owners to simply walk in and enjoy.

Great buying in Indooroopilly, this property is a must see!

Features:
- Recently renovated including new paint, floors, kitchen, bathrooms etc.
- Huge kitchen featuring island bench, gas cooking and stone bench tops
- Solar hot water (Still under warranty)
- Air conditioning
- All bedrooms with built-ins and air-conditioning
- Master with ensuite and built-ins
- Two Huge timber decks overlooking pool with views back over leafy Indooroopilly
- Large downstairs rumpus or kid's room
- Utility room or potential fourth bedroom
- Inground salt water swimming pool with current compliance
- 'Crimsafe' Security screens
- Water saver items - showers and tap outlets and dual flush toilets
- Electronic water irrigation - on lawns and garden beds
- Single lock-up garage with an extra carport
- Plenty of storage area under house
- Power to the sheds
- Termite irrigation piping with regular treatments
- Brisbane City Council rates: $1648 per year

This property would make an ideal addition to your investment portfolio, or to enjoy yourself.
Close to schools, shopping and transport, this is suburban family living at its best. Don't miss this beautiful family home in a quiet, private location close to all amenities!

Property Code: 1493
3 2 2

Details

Address 29 Blackstone Street, Indooroopilly
Price SOLD
Property Type Residential
Property ID 8
Category House

Tools

Share This Property